Meravelles
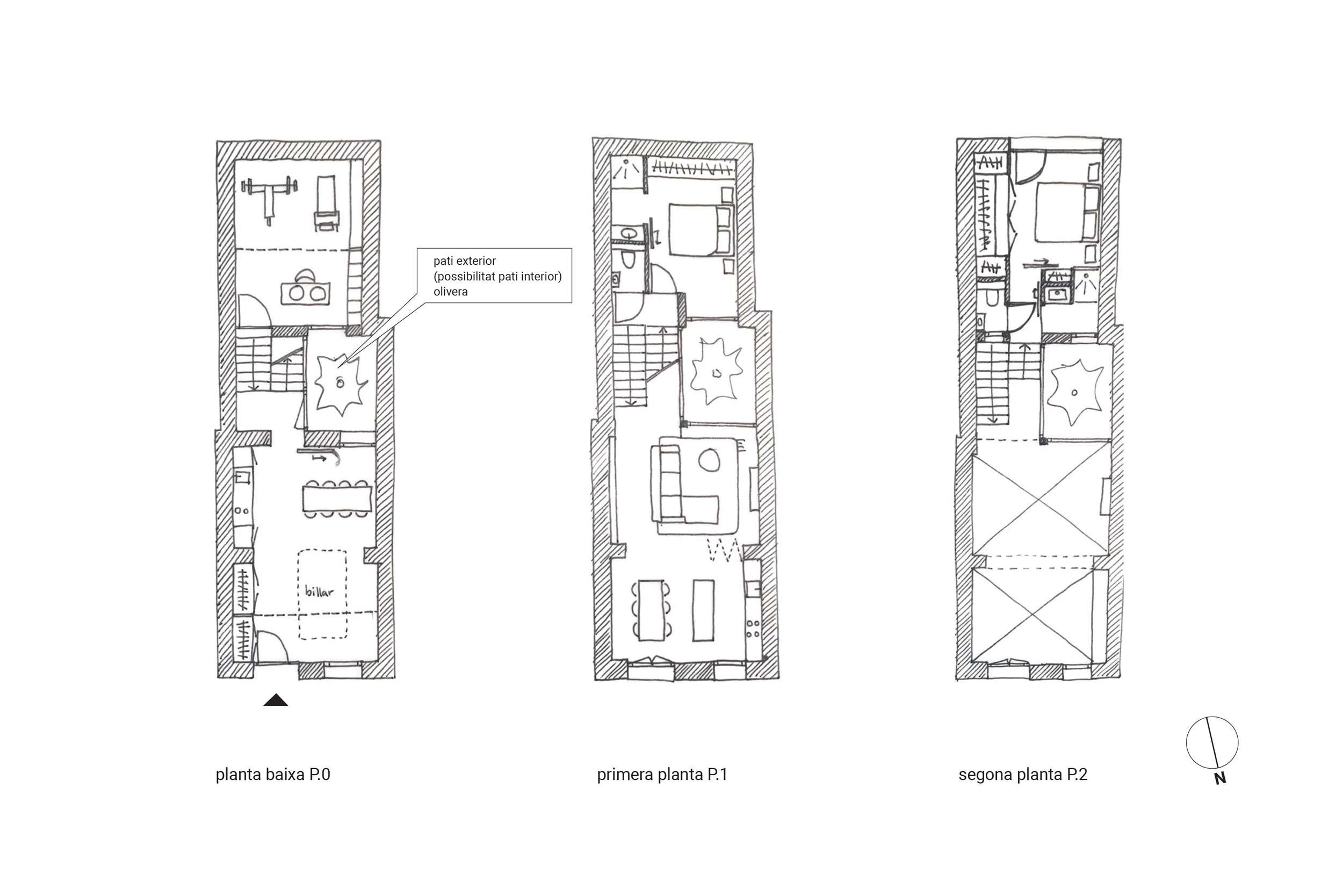
This home for a couple combines the character of the original front construction with a contemporary extension at the back, connected by a vibrant patio. More than enhancing ventilation and natural light throughout the house, the patio becomes a dynamic, playful space that links the different levels. Beyond the usual functions of a home, the design fulfills the client’s dream of a spacious gathering area for friends and a dedicated music room. The main bedroom offers stunning views of the mountains, creating a peaceful retreat.
location
Pedreguer, Spain
year
2019
client
private
size
130 m2
status
concept
design team
Teresa Avellà



